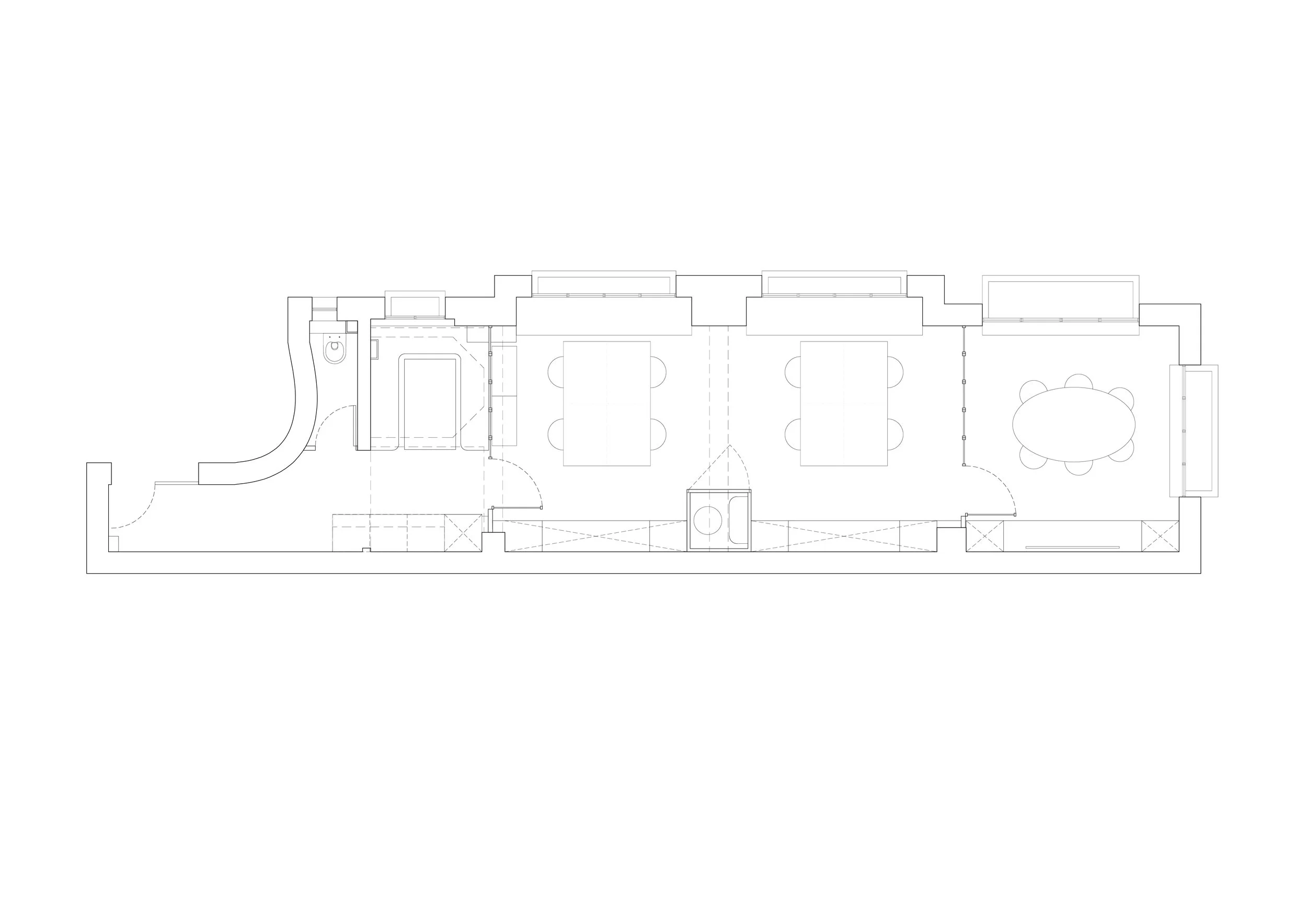
REAUMUR
_Intérieurs, bureaux
Projet tertiaire _ Paris, France
Surface _ 52m2
Statut _ Livraison Septembre 2025
Texte en cours
Projet tertiaire _ Paris, France
Surface _ 52m2
Statut _ Livraison Septembre 2025
Texte en cours